
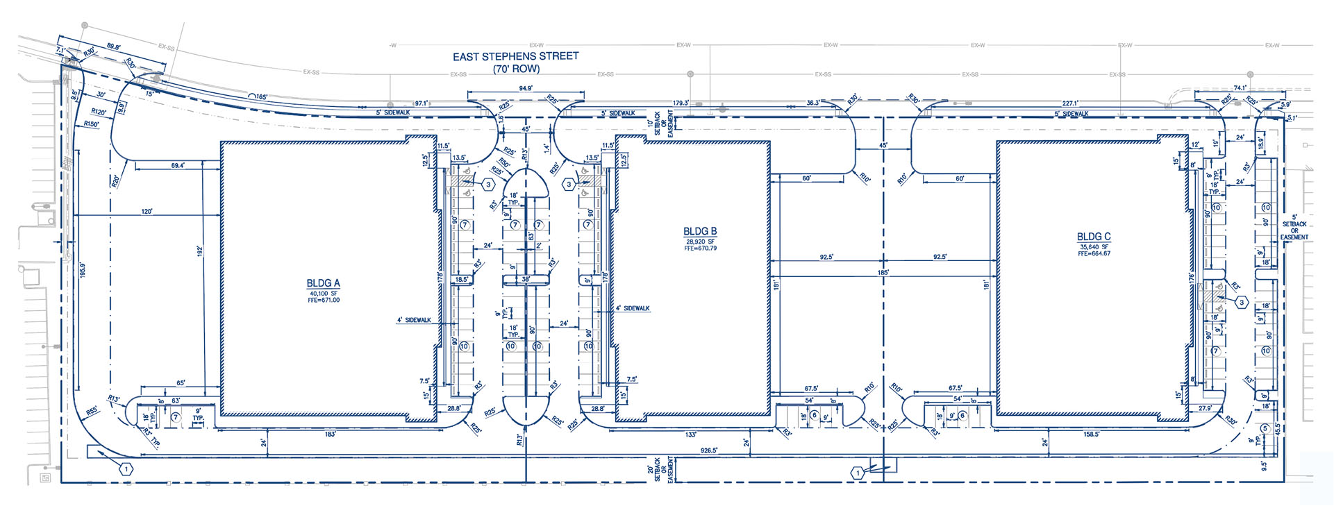
Situated in the supply-constrained Great Southwest submarket, the site was selected based on our view that demand for well-located shallow bay industrial facilities remains strong and underserved. The 104,660 SF development, split across three buildings, is designed to accommodate a range of light industrial and last-mile distribution tenants, with flexibility to meet varied operational needs.
Trumont led a Planned Development entitlement effort to thoughtfully design the site as a highly functional business park and delivering operational efficiency that rarely exists in the submarket. We expect Matlock 20 to be a best-in-class development and a benchmark for future projects in our commercial pipeline.
